Funkcjonalny projekt wnętrza koncentruje się na zapewnieniu optymalnego wykorzystania przestrzeni, ergonomiczności i spełnieniu potrzeb użytkowników, jednocześnie uwzględniając estetykę i styl. Zawiera także szczegółową dokumentację techniczną niezbędną do przeprowadzenia wszelkich prac wykończeniowych.
Projekt funkcjonalny zawiera następujące elementy:
- Inwentaryzację – czyli dokładny pomiar i dokumentację stanu istniejącego, na podstawie której można zaplanować zmiany i dostosować rozwiązania do realnych wymiarów i warunków.
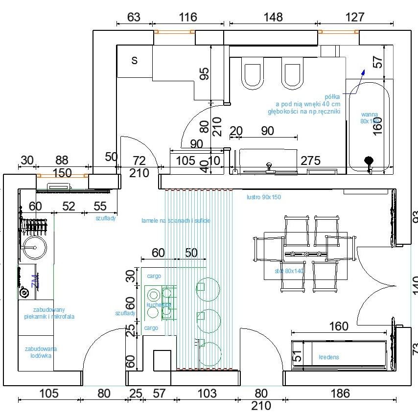
- Rzut funkcjonalny – czyli dwuwymiarowy plan mieszkania lub domu z wrysowanymi w odpowiedniej skali ścianami, meblami, sprzętami i innymi elementami wyposażenia. Rzut funkcjonalny pokazuje układ i rozmieszczenie poszczególnych stref i funkcji w przestrzeni, tak aby były one logiczne, praktyczne i komfortowe.
- Projekt instalacji – czyli określenie lokalizacji i sposobu prowadzenia instalacji elektrycznej, wodno-kanalizacyjnej, grzewczej, wentylacyjnej i innych. Projekt instalacji uwzględnia zapotrzebowanie na punkty świetlne, gniazdka, baterie, grzejniki, klimatyzatory itp. oraz ich dopasowanie do aranżacji wnętrza.
- Projekt oświetlenia – czyli dobór rodzajów i ilości źródeł światła oraz ich rozmieszczenie w pomieszczeniach. Projekt oświetlenia ma na celu zapewnienie odpowiedniego poziomu i jakości oświetlenia w zależności od funkcji i nastroju wnętrza.
- Projekt kolorystyki – czyli wybór barw ścian, podłóg, sufitów, mebli i dodatków oraz ich zestawienie ze sobą. Projekt kolorystyki ma na celu stworzenie harmonijnej i spójnej palety kolorów, która podkreśli charakter i styl wnętrza.
Funkcjonalny projekt wnętrza pozwala też na lepsze wykorzystanie potencjału pomieszczeń i zwiększenie ich wartości. Dzięki dobrze zaprojektowanym wnętrzom możesz maksymalnie wykorzystać ich potencjał oraz zaoszczędzić czas i pieniądze.









O mnie
Projektantka wnętrz z zamiłowania i wykształcenia.
Pasjonatka podróży, porządku, funkcjonalności i elektronarzędzi.
Współpraca
Tekstylia do hoteli i apartamentów
Wygodne materace
Łóżka kontynentalne
Kontakt
tel. +48 693521005
Katarzyna Trojanowska
